- Úvod
- Vybavení autoservisů
- Autozvedáky, dílenské zvedáky, hevery, stojany
- Nůžkové a sloupové autozvedáky
- Sloupové zvedáky na auto
- Dvousloupový bezpřejezdový zvedák s automatickým zámkem, nosnost 4t - QSD3800
Dvousloupový bezpřejezdový zvedák s automatickým zámkem, nosnost 4t - QSD3800
- Kompletní specifikace
- Hodnocení 0
Dvousloupový bezpřejezdový zvedák s automatickým zámkem, nosnost 4t - QSD3800Na dotaz48 279 Kč39 900 Kč bez DPH
Dvousloupový bezpřejezdový elektrohydraulický zvedák QSD3800A s elekromagnetickými bezpečnostními západkami, nosnost 4t, vyhotovení žluto-šedé (žlutá RAL 1018, šedá RAL 7024)
Zvedák určený pro zvedání osobních a lehkých nákladních automobilů. Díky nosnosti 4 000 kg uzvedne nejen osobní automobily, ale i naložené dodávkové vozy. Ramena zvedáku jsou teleskopická asymetrická a mají nadstandardně velký rozsah (viz. technické parametry). Přední ramena jsou dvouprvková a zadní tříprvková. Délky a rozměry asymetrických zvedacích ramen jsou optimálně zvoleny tak, aby vyhověla pro zvedání osobních a lehkých nákladních aut, které jsou v ČR běžně provozované – od krátkých osobních až po dlouhé dodávkové.
Zvedák je vybaven hřebeny, do kterých při zvedání zapadají bezpečnostní západky. Při spouštění zvedáku jsou tyto západky elektomagneticky odjišťovány.
Vlastnosti:
• Elektricko-hydraulický pohon se dvěma válci kombinovaný s řetězovým zvedacím systémem
• Synchronizační ocelová lana a průmyslové kladky zaručující rovnoměrné posouvání obou platforem s rameny, odolnost a vysokou bezpečnost
• Elektromagnetické odjišťování západek
• 2 a 3-prvková asymetrická teleskopická ramena jako standard
• nízký zvedací bod (95 mm), vhodný také pro sportovní vozy
• Výškově nastavitelné gumové podložky
• Gumová ochranna dveří automobilu
• Horní koncový spínač
• Nouzový spouštěcí ventil (při výpadku el. proudu)
• každý zvedák prošel testem dynamického zatížení 115% jmenovité nosnosti (4 600 kg) a testem statického zatížení 150% (6 000 kg). Schváleno CE a cerfifikováno podle evropské normy EN 1493.
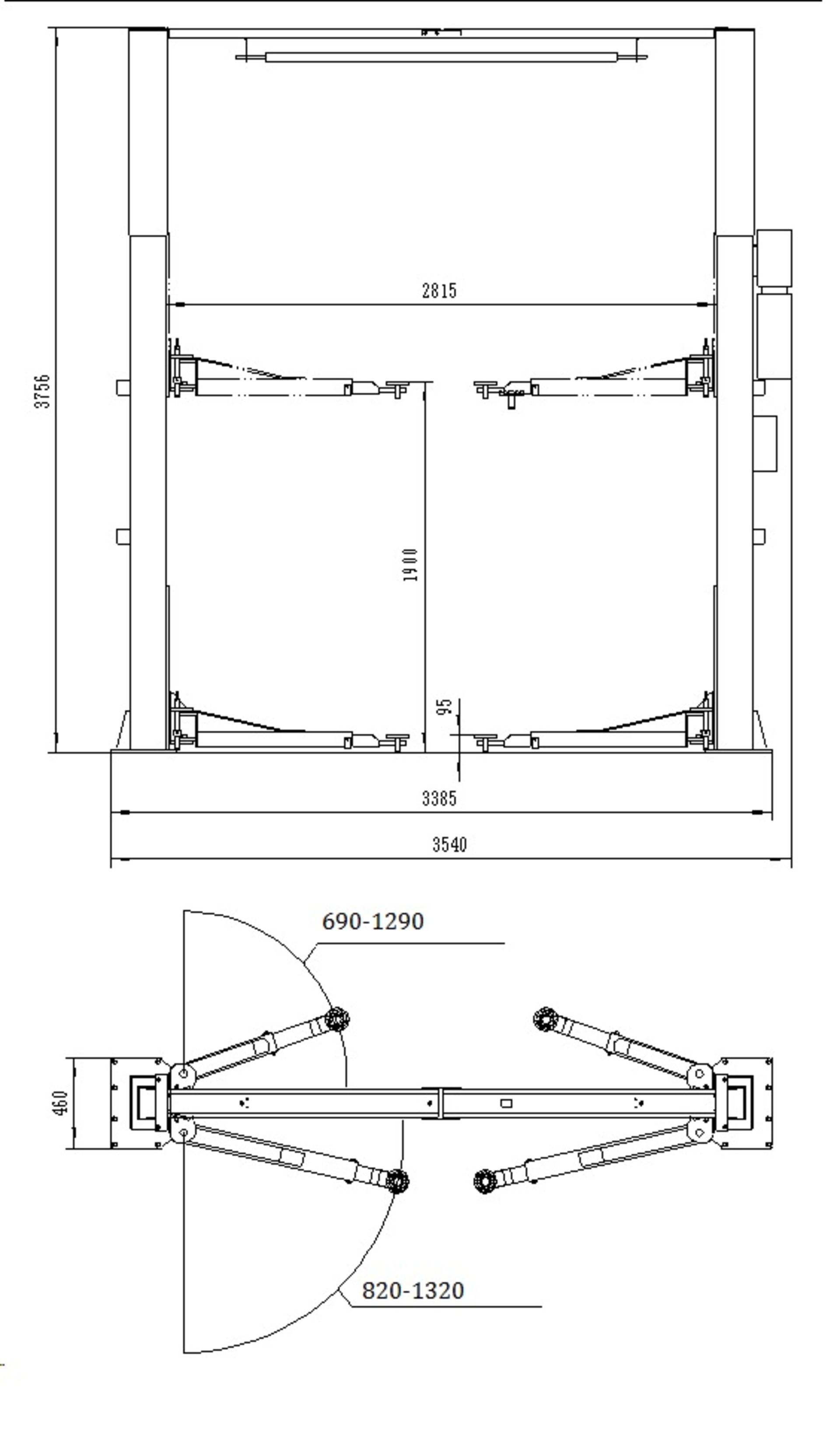
Technické údaje:
• Hmotnost: 0,68 t
• Automatický zámek: ANO
• Celková šířka: 3540 mm
• Délka dlouhých ramen: 820-1320 mm
• Délka krátkých ramen: 690-1290 mm
• Doba spouštění: max. 40 sec.
• Doba zdvihu: max. 55 sec.
• Max. výška zdvihu: 1900 mm
• Maximální nosnost: 4000 kg
• Min. výška zdvihu: 95 mm
• Napájení: 400 V
• Příkon: 2,2 kW
• Šířka mezi sloupy: 2815 mm
• Výška sloupů: 3756 mm




.jpg)












